Webmail

Kies je webmail

Omdat ZeelandNet ook DELTA webmail aanbiedt, vragen we je eenmalig je voorkeur op te geven.

Te huur: ruim appartement Hoge Molenstraat 16A Zierikzee

€ 995,-
69x bekeken sinds 3 dec. '25
Conditie: Gebruikt

Beschrijving

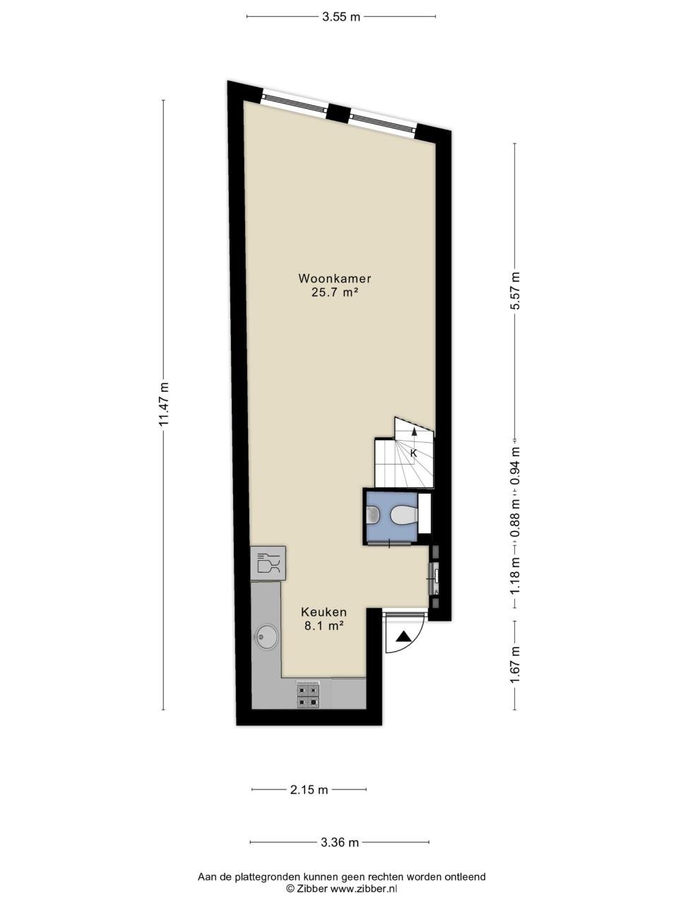
Te Huur: Appartement Hoge Molenstraat 16A te Zierikzee (Centrum)

In de gezellige binnenstad van Zierikzee hebben wij per direct een ongemeubileerd appartement te huur.

Het appartement is geschikt voor 1 of 2 volwassen personen.

De gehele woning is voorzien van een laminaatvloer

Omschrijving

  • Oppervlakte: 3 verdiepingen

Begane grond;   
Entree met meterkast en buitenruimte/terras voor het plaatsen van fietsen

1e Verdieping:
Entree woning, woonkamer met keuken (afzuigkap en gaskookplaat)  en toiletruimte en gedeeld dakterras

2e Verdieping:
Overloop, slaapkamer met wastafel, badkamer (met toilet, wasruimte, wastafel en douche)                 

3e verdieping:
Zolder (slaapkamer) niet verwarmd,  CV Ketel

  • Energielabel: D

Huurvoorwaarden

  • Huurprijs: € 995,-- per maand exclusief gas, water en elektrisch
  • Borg: € 1.950,-- (te voldoen bij aanvang huur)
  • Huisdieren: Niet toegestaan
  • Roken: Niet toegestaan
  • Type huurder: Voorkeur voor rustige, zorgzame huurders, maximaal 2 volwassen personen.
  • Inkomensvereiste: Een bruto maandinkomen van minimaal 2,5 keer de maandelijkse huur

Aanmeldprocedure

Stuur de onderstaande documenten graag per mail naar [email protected].

Korte introductie: Wie ben je en waarom wil je hier wonen?

  • Inkomensdocumenten: Kopieën van drie recente loonstroken en een werkgeversverklaring. Zelfstandig ondernemer? Voeg dan de financiële gegevens en belastingaangiften van de laatste twee jaar toe.
  • Gegevens huidige woonsituatie: Naam, adres en, indien van toepassing, een verhuurdersverklaring.
  • Inkomensverklaring Belastingdienst: Voor bevestiging van je financiële situatie.
  • Kopie ID-bewijs: Zorg dat BSN en pasfoto zijn afgeschermd.

Selectieproces

Wij beoordelen alle aanvragen zorgvuldig op volgorde van binnenkomst, in lijn met de Wet Goed Verhuurderschap. We hanteren een eerlijk en transparant proces, met een focus op het vinden van huurders die passen bij de huurvoorwaarden en zorg dragen voor het gehuurde.

Ben jij de rustige en betrouwbare bewoner die wij zoeken reageer snel en grijp deze unieke kans om te wonen in het hart van Zierikzee!

 

 

Energie
  • Energielabel: D-Label
Advertentienr. 9877926

AVV Vastgoed

2 advertenties
18 jaar actief op het Prikbord

Stuur een bericht