Kies je webmail

Omdat ZeelandNet ook DELTA webmail aanbiedt, vragen we je eenmalig je voorkeur op te geven.

Plaats advertentie

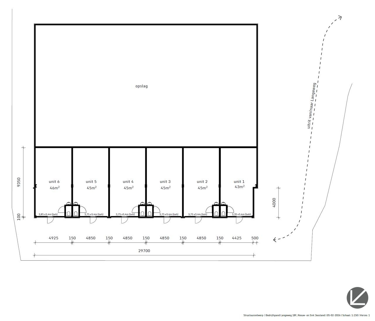
Te huur moderne nieuwbouwunits

N.o.t.k.
170x bekeken sinds 23 feb. '26
Conditie: Nieuw

Beschrijving

Aan de Langeweg in Nieuw- en Sint Joosland zijn zes moderne nieuwbouwunits beschikbaar die uitblinken in kwaliteit, comfort en gebruiksgemak. Met een oppervlakte van circa 43 tot 46 m² vormen deze ruimtes een ideale oplossing voor iedereen die behoefte heeft aan een nette, zelfstandige en goed bereikbare plek voor opslag, werkzaamheden of persoonlijke projecten.

 

De units zijn recent gebouwd en hebben een frisse, professionele uitstraling. Binnen beschik je over een praktische en verzorgde ruimte die direct te gebruiken is. Elke unit is voorzien van een eigen toilet en wastafel, waardoor je volledig zelfstandig gebruik kunt maken van de ruimte zonder afhankelijk te zijn van gedeelde voorzieningen. Ook is er een eigen groepenkast aanwezig, zodat je de elektra veilig en naar eigen behoefte kunt benutten. De overheaddeur zorgt ervoor dat laden en lossen eenvoudig verloopt en dat de ruimte ook geschikt is voor het plaatsen van materialen, gereedschappen of andere goederen die wat meer volume vragen.

 

Door de slimme maatvoering bieden de units precies de ruimte die je nodig hebt, zonder onnodige vierkante meters. Dat maakt ze bijzonder interessant voor ondernemers die een overzichtelijke werk- of opslagplek zoeken, maar net zo goed voor particulieren die extra ruimte willen voor hun hobby, opslag of projecten. De combinatie van nieuwbouwkwaliteit, eigen voorzieningen en een functionele indeling maakt dit type ruimte zeldzaam in dit formaat.

 

De ligging aan de Langeweg is daarbij een grote plus. Je zit hier in een rustige, overzichtelijke omgeving met een prettige bereikbaarheid per auto of bestelbus. Hierdoor is de locatie zowel praktisch als aangenaam in gebruik, of je er nu dagelijks komt of de ruimte meer incidenteel gebruikt.

 

Wie op zoek is naar een verzorgde, zelfstandige unit met een moderne uitstraling en direct gebruiksgemak, vindt hier een oplossing die in de praktijk verrassend veelzijdig blijkt. Beschikbaarheid is beperkt tot zes units, waardoor dit een kans is die zich niet vaak voordoet. Neem gerust contact op voor meer informatie of om de mogelijkheden te bespreken. 


Mail adres: [email protected] 
Telefoonnummer: 0621810818

Overzicht
  • Aanbodtype: Huur
Advertentienr. 10253318

DavidenKim

DavidenKim

1 advertentie
14 jaar actief op het Prikbord

Stuur een bericht