Webmail

Kies je webmail

Omdat ZeelandNet ook DELTA webmail aanbiedt, vragen we je eenmalig je voorkeur op te geven.

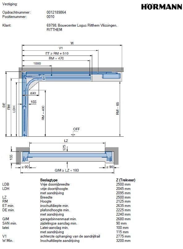
Hörmann sectionaaldeur 2500x2125 mm NIEUW

€ 700,-
15x bekeken sinds 3 dec. '25
Conditie: Nieuw

Beschrijving

Hörmann sectionaaldeur 2500x2125 mm NIEUW

Hörmann sectionaaldeur
- LPU42 Z m. M-profilering Woodgrain
- Afmetingen bxh 2500 x 2125 mm
- Stijlenpakket Z-Beslag 2125 mm
- Deurblad incl. blende in RAL 6009

Slot uitsparing in het midden

Montage mogelijk in overleg

Prijs is Incl BTW

Betreft magazijnrestant. Op is op en weg is weg. Aan deze advertentie kunnen geen rechten worden ontleend. Getoonde afbeelding is indicatief.

Algemeen
  • Type: Garagedeur
  • Hoogte: 2125cm
  • Breedte: 2500cm
  • Materiaal: Kunststof
Advertentienr. 9878810

Bouwcenter Logus-De Hoop

Zakelijk Bouwcenter Logus-De Hoop

11 advertenties
13 jaar actief op het Prikbord

Stuur een bericht